Shooter Property Services (Newry)

9 Erskine Street Newry, BT35 6BX

3 Bed Terrace House For Sale

Offers over £124,950

Print additional images & map (disable to save ink)

Photo 1

Telephone:

028 3026 0565

View Online:

www.shooter.co.uk/1058840

Key Information

Address 9 Erskine Street Newry, BT35 6BX
Price Offers over £124,950
Style Terrace House
Bedrooms 3
Receptions 2
Bathrooms 1
Heating Oil
EPC Rating
Energy Performance Certificate (PDF 125.8KB)
Status Under offer
   

Features

  • 3 Bed Townhouse
  • Oil Fired Central Heating
  • PVC Double Glazed Windows
  • Carpets, Curtains & Blinds Included
  • Good Decorative Order
  • Central Location
  • City Centre, Local Schools and Leisure Centre Within Walking Distance
  • Short Drive to Damolly Retail Park and A1 Motorway
  • Ideal Starter Home or Investment

Additional Information

Highly Convenient Three Bedroom

This spacious three-bedroom townhouse is ideally located close to schools, shops, the A1 motorway and the city centre. The property offers generously proportioned accommodation with excellent potential for personalisation, making it an ideal choice for both first-time buyers and investors. Early viewing is highly recommended due to anticipated strong interest.

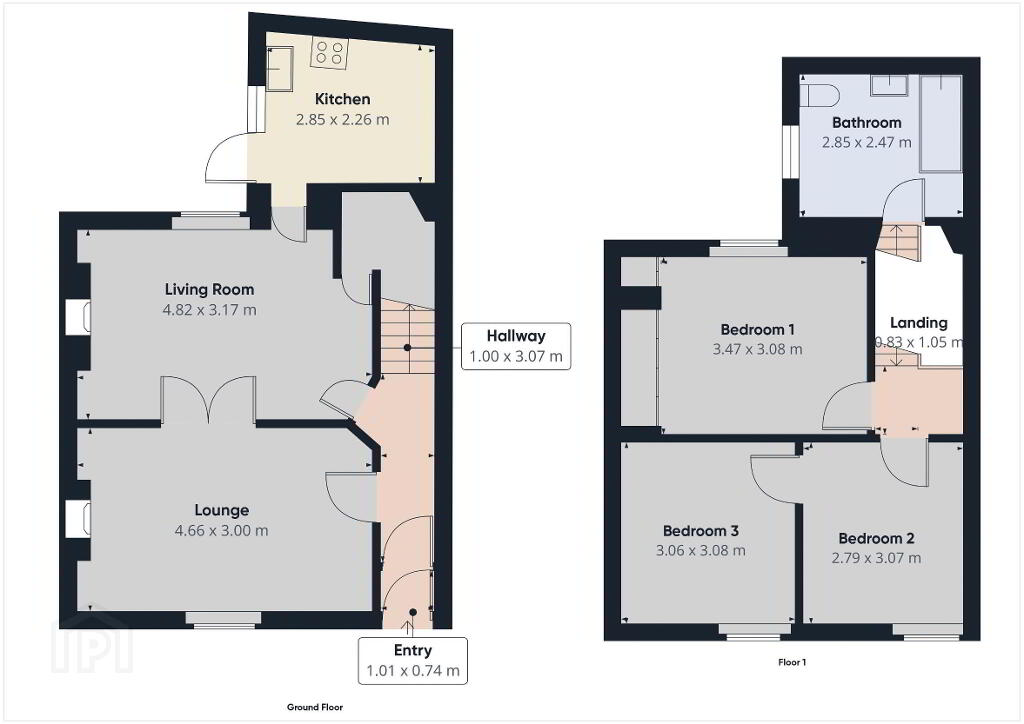
Entrance Porch 3' 4'' x 2' 5'' (1.01m x 0.74m)
Hardwood door and laminate floor
Entrance Hallway 3' 3'' x 10' 1'' (1.00m x 3.07m)
Vinyl flooring
Lounge 15' 3'' x 9' 10'' (4.66m x 3.00m)
Bay window, open fire with tiled hearth, decorative inset, wood surround and mantle. Telephone point. Double french doors leading to living room. Telephone point and laminate flooring
Living Room 15' 10'' x 10' 5'' (4.82m x 3.17m)
Bay window, open fire, tiled hearth, decorative inset wood surround and mantle. Storage cupboard off. Laminate flooring
Kitchen 9' 4'' x 7' 5'' (2.85m x 2.26m)
High and low level units, 1 1/2 stainless steel sink unit, cooker, washing machine, electric fan, space for fridge freezer, part tiled walls, vinyl flooring, PVC door leading to rear yard.
Landing 2' 9'' x 3' 5'' (0.83m x 1.05m)
Carpet
Bedroom 1 11' 5'' x 10' 1'' (3.47m x 3.08m)
Bay window, built-in wardrobes with mirror sliding doors. vinyl floor. Hotpress off.
Bedroom 2 9' 2'' x 10' 1'' (2.79m x 3.07m)
Bay window, vinyl floor. Loft access. Through bedroom providing access to bedroom 3.
Bedroom 3 10' 0'' x 10' 1'' (3.06m x 3.08m)
Bay window, vinyl floor.
Bathroom 9' 4'' x 8' 1'' (2.85m x 2.47m)
Pedestal wash hand basin, toilet, bath with shower screen and tritan electric shower, tiled walls and floor
External
Enclosed concrete yard, boiler house/storage. Watertap, outside light.
  • Shooter

    Shooter Property Services (Newry)

    028 3026 0565

Photo Gallery

Photo 1 Photo 2 Photo 3 Photo 4 Photo 5 Photo 6 Photo 7 Photo 8 Photo 9 Photo 10 Photo 11 Photo 12 Photo 13 Photo 14 Photo 15 Photo 16 Photo 17 Photo 18 Floorplan

Location

Visit www.shooter.co.uk for further details.