Shooter Property Services (Banbridge)

Building Site Adjacent To, No. 10 Tyrones Ditches, Poyntzpass, Newry, BT35 6SB

Building Site For Sale

£72,500

Print additional images & map (disable to save ink)

Photo 8

Telephone:

028 4066 2206

View Online:

www.shooter.co.uk/940130

Key Information

Address Building Site Adjacent To, No. 10 Tyrones Ditches, Poyntzpass, Newry, BT35 6SB
Price Last listed at £72,500
Land type Building Site
Status Sale Agreed

Features

  • Building Site for a Detached Dwelling with Full Planning and Building Control Approval
  • Splendid Rural Views
  • Planning Permission Approved under Reference P/2014/0481/F
  • Approximately 0.33 acres
  • Foundations in Place
  • Water & Electric Connections Available Nearby
  • Consent to Discharge approved

Additional Information

Superb Building Site with Full Planning Permission

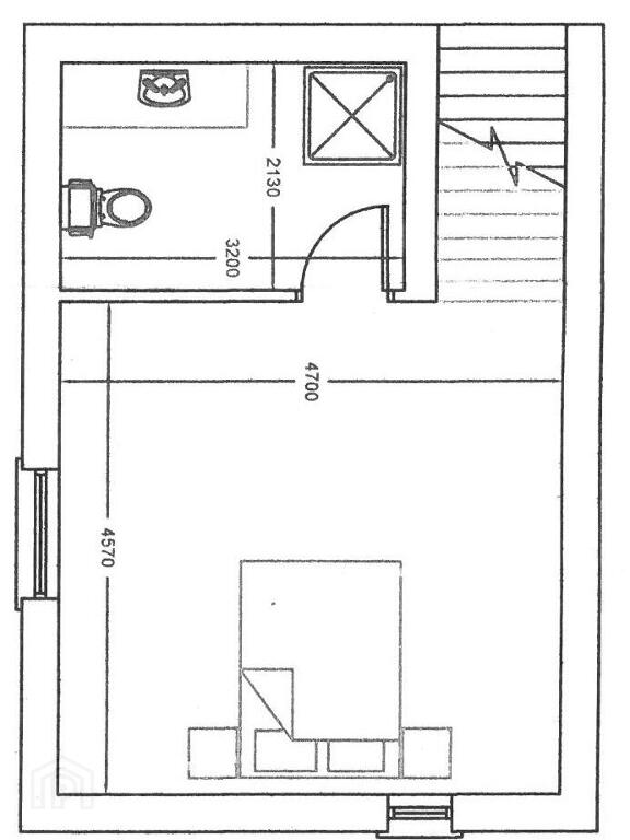
Excellent Building Site with Full Planning Permission for a 168 sq m / 1,800 sq ft detached dwelling.
Situated approximately 3.5 miles from Poyntzpass and 7.5 miles from Newry this site enjoys a very pleasant rural position. With foundations in place construction of this dwelling is ready to commence and we highly recommend viewing to fully appreciate what this site has to offer.

Directions
From Poyntzpass take Tannyoky Road for approx. 0.6 miles. Take left onto Tullynacross Road. Travel approximately 1.6 miles then take left onto Tyrones Ditches Road. Travel approximately 1.4 miles and subject site is on the right, beside No. 10.
  • Shooter

    Shooter Property Services (Banbridge)

    028 4066 2206

Photo Gallery

Photo 8 Photo 9 Photo 6 Photo 7 Photo 2 Photo 3 Photo 4 Photo 5

Location

Visit www.shooter.co.uk for further details.