This site uses cookies to store information on your computer.
| Address 11a Cowan Street, Newry Address | |
| Price £120,000 Price | |
| Style Terrace House Style | |
| Bedrooms 3 Bedrooms | |
| Receptions 1 Reception Room | |
| Bathrooms 2 Bathrooms | |
| Heating Gas Heating | |
| EPC Rating EPC Rating EPC Rating | |
| Status For sale Status | |
Ideal Starter Home or Investment
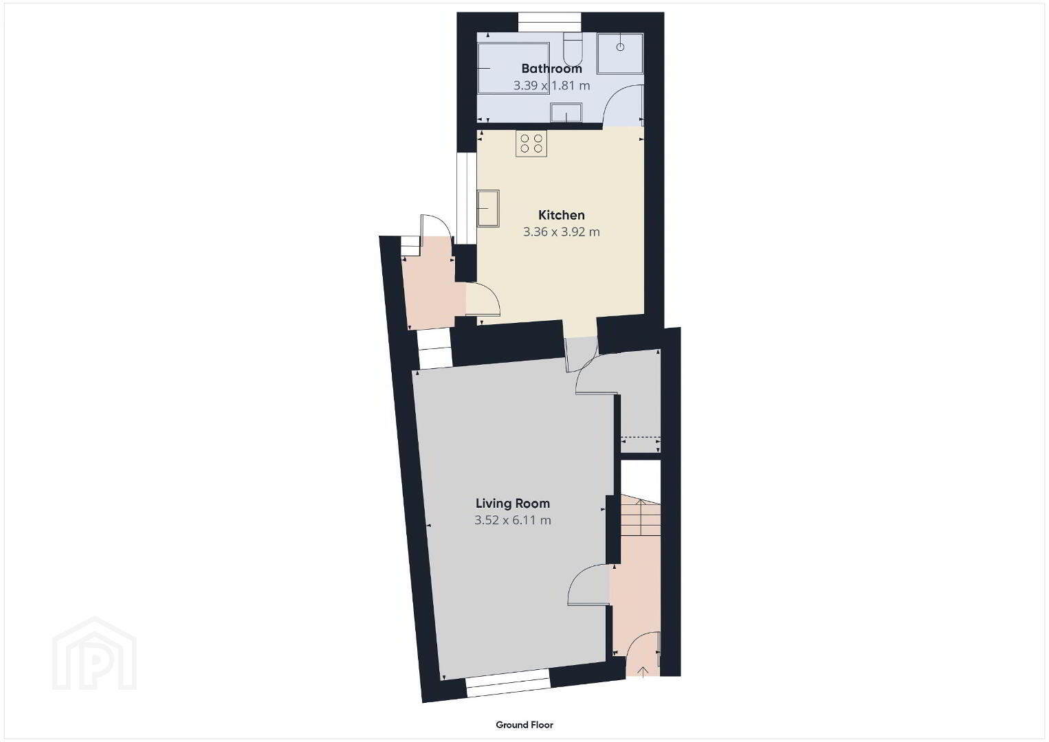
This well-presented three-bedroom mid-terrace home is situated in a highly sought-after residential area, conveniently located close to local parks and shops and within walking distance of the city centre. The property offers a spacious reception room, a modern fitted kitchen, a contemporary bathroom, and the added benefit of an ensuite to the main bedroom, along with a private rear yard. The property would be ideally suited to first-time buyers and investors alike, and an early internal viewing is highly recommended to fully appreciate the accommodation on offer.
Fill in your details using our enquiry form and a member of our team will get back to you.
We will contact you as soon as we can