Key Information

Address 18 Dromore Road, Banbridge Address
Price £375,000 Price
Style Detached House Style
Bedrooms 4 Bedrooms
Receptions 2 Reception Rooms
Bathrooms 2 Bathrooms
Status For sale Status
   

Features

  • Mains Gas Central Heating
  • PVC Double Glazing
  • Fitted High Spec Kitchen With Appliances
  • Luxury Sanitary Ware
  • Tiled Hall, Kitchen & Bathroom Floors
  • High Electrical Specification
  • Garage
  • Solar Panels
  • Estate Railing To Front Boundary
  • Tarmac Drive, Large Paved Patio
18 Dromore Road, Banbridge BT32 4EB

High-spec turnkey new build on a large south-facing site with A1 Belfast–Dublin access

This exceptional high-spec new build offers a true turnkey finish, thoughtfully designed to meet modern living standards while delivering comfort, efficiency, and style throughout. The property is completed to an impressive specification, including a bespoke fitted kitchen with integrated appliances, luxury sanitary ware, high-quality tiling, carpets, full painting and decoration, and solar panels to enhance energy efficiency.

Occupying a large, individual south-facing site fronting the Dromore Road, the home benefits from excellent natural light and a strong sense of space. Its location is equally appealing, positioned within a short walk of local shops, schools, and the town centre, making it ideal for families and professionals alike.

Commuters will appreciate the easy access onto the A1 Belfast–Dublin corridor, providing convenient connections to surrounding towns and cities.

Early private viewing is highly recommended and strictly by appointment to fully appreciate the quality, setting, and convenience this outstanding new build home has to offer.

Dwelling 135 sqm / 1450 sq.ft. plus garage @ 220 sq.ft.

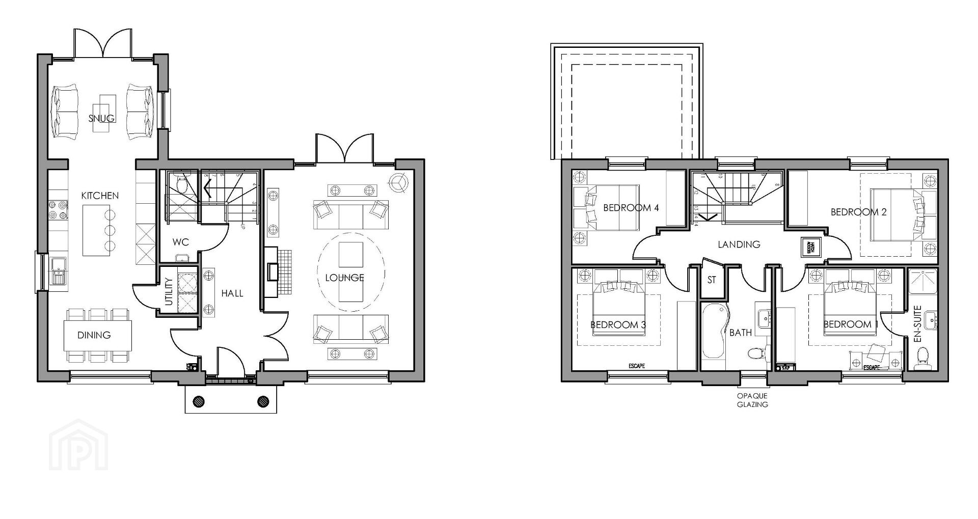
Entrance Hall
Composite glazed front door with double glazed side panels and fan light, fully tiled floor, double radiator.
WC 7' 0'' x 3' 0'' (2.13m x 0.91m)
Back to wall WC, vanity unit with wash hand basin and mixer tap, LED mirror, tiled floor.
Lounge 19' 0'' x 14' 3'' (5.79m x 4.34m)
Media wall with TV inset and feature LED flame effect electric fire, 5 amp plug sockets, PVC double glazed doors to rear patio.
Kitchen / Dining 20' 1'' x 14' 5'' (6.12m x 4.39m)
Full range of high and low level units with white quartz worktop and upstands incorporating stainless steel sink unit and mixer tap, glazed unit and worktop lighting. Built-in twin ovens, ceramic hob with extractor hood, built-in fridge/freezer and fully integrated dishwasher, kitchen unit double doors leading to hidden utility space with double stack spaces for washing machine and tumble dryer and separate storage units, fully tiled floor, recessed ceiling spots. Open plan into…
Sunroom 10' 6'' x 9' 1'' (3.20m x 2.77m)
Recessed ceiling spots, tiled floor, PVC double glazed double doors to patio.
1st Floor
Landing, double storage/airing cupboard.
Bedroom 1 13' 7'' x 10' 2'' (4.14m x 3.10m)
5 amp plug sockets, TV point, ethernet cable.
Ensuite 10' 1'' x 3' 3'' (3.07m x 0.99m)
Basin vanity and back to wall WC unit, LED wall mirror and fully tiled shower enclosure with thermostatic mixer valve, handheld and fixed rain head attachments, feature anthracite radiator, recessed ceiling spots.
Bedroom 2 14' 3'' x 8' 6'' (4.34m x 2.59m)
TV point.
Bedroom 3 11' 2'' x 10' 2'' (3.40m x 3.10m)
TV point.
Bedroom 4 11' 2'' x 8' 6'' (3.40m x 2.59m)
TV point.
Bathroom 8' 6'' x 6' 2'' (2.59m x 1.88m)
Luxury white suite comprising dual flush WC, wall mounted vanity unit with wash hand basin and mixer tap, LED mirror, feature bath with centre mixer tap and quadrant shower cubicle with thermostatic mixer valve, handheld and fixed rain head attachments. Part tiled walls, fully tiled floor, heated chrome towel rail, recessed ceiling spots.
Detached Garage 18' 1'' x 10' 11'' (5.51m x 3.32m)
Motorised up and over sectional insulated door.
Gross Internal Floor Area
1550 sq.ft - 144 sqm
Please Note
All room measurements provided are maximum measurements.
Read More

Interested in viewing this property?

Banbridge Office
21 Newry Street Banbridge Co. Down, BT32 3EA
Tel: 028 4066 2206 Email:

Fill in your details using our enquiry form and a member of our team will get back to you.

SUCCESS Your message has been sent

We will contact you as soon as we can

Please check you have entered all details correctly:

Looking for something similar?

Photo 37
25 The Tudors, Banbridge BT32 4QR
  • 4
  • 2
  • 2
Price £350,000
Photo 34
68 Valley Lane, Waringstown BT66 7SF
  • 4
  • 2
  • 2
Price £400,000